Pre‑Construction & Drafting Excellence
Where Technical Precision Meets Project Vision
Who We Are
Vision Grid
At Vision Grid, we bring deep construction experience from projects across Melbourne, giving us a practical understanding of the challenges, details, and standards each site demands.
We translate architectural designs into clear, build-ready documentation that speaks directly to builders and trades, eliminating the need for guesswork or extra clarification.
Our goal is to turn your vision into a fully coordinated, executable reality and we’re here to support you through every step of that journey.
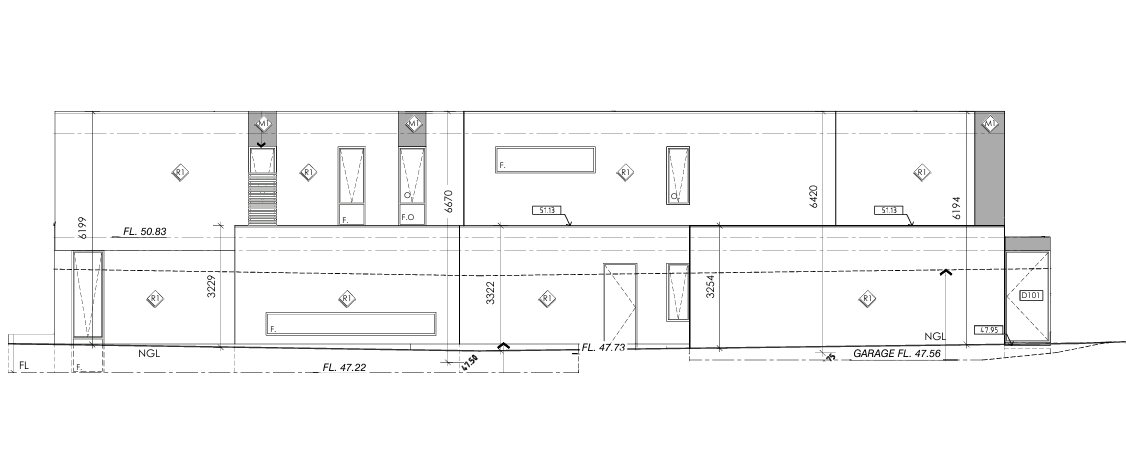
What Makes Us Different
See how our drafting and pre-construction expertise brings architectural concepts to life across Melbourne.
Experience It Before It Exists
Take a guided journey through your future space. explore every room, every detail, and feel the design come to life before construction begins.
Explore. Interact. Personalise.
Walk through your future space and interact with every detail, switch materials, test finishes, and make confident choices before construction.
Working with Vision Grid during pre-construction made a huge difference on site. Their documentation was clear, accurate, and left no room for confusion; every trade knew exactly what to do.
Nick Moore
We’ve worked with plenty of drafting teams, but Vision Grid stood out. They actually understand what happens during construction, and it shows in the way they detail and coordinate their plans.
David Lee
From the first concept to final documentation, Vision Grid supported us every step of the way. Their attention to detail and construction knowledge helped our project run smoother than expected.
Sarah Green
Have a project?
Get in touch!
Let’s talk about how we can support your vision, from early planning to construction-ready drawings.
Fill out the form or get in touch directly. We’re here to help.
